

鍋爐檢修平臺2JM12.5*6卷揚機(鉗盤式)
卷揚機安全使用注意事項及要求
(1)卷揚機作業前準備
1.安裝時,基座必須平穩牢固,設置可靠的地錨并應搭設工作棚。操作人員的位置應能看清指揮人員和拖動或起吊的物件。
2.作業前檢查卷揚機與地面固定情況、防護設施、電氣線路接地線、制動裝置和鋼絲繩等全部合格后方可使用。
3.使用皮帶和開式齒輪傳動的部分,均須設防護罩,導向滑輪不得用開口拉板式滑輪。
4.以動力正反轉的卷揚機,卷筒旋轉方向
應和操縱開關上指示的方向一致。
5.從卷筒中心線到第一個導向滑輪的距離,帶槽卷筒應大于卷筒寬度的15倍,無槽卷筒應大于20倍,當鋼絲繩在卷筒中間位置時,滑輪的位置應與卷筒軸心垂直。
6.卷揚機自動操縱桿的行程范圍內不得有障礙物。
(2)卷揚機安全操作規程
1.卷揚機嚴格禁止超負載使用?。?!
1.卷揚機應安裝在平整堅實、視野良好的地點,機身和地錨必須牢固。卷揚機與導向滑輪中心線應垂直對正,卷揚機距離滑輪一般應不小于十五米。
2.作業前,應檢查鋼絲繩、離合器、制動器、保險棘輪,傳動滑輪等,確定安全可靠,方可操作。
3.鋼絲繩在卷筒上必須排列整齊,作業中最少需保留三圈。
4.作業時,不準有人跨越卷揚機的鋼絲繩。
5.吊運重物需在空中停留時,除使用制動器外,并應用棘輪保險卡牢。
6.操作時,嚴禁擅自離開崗位。
7.工作中要聽從指揮人員的信號,信號不明或可能引起事故時,應暫停操作,待弄清情況后方可繼續作業。
8.作業中突然停電,應立即拉開閘刀,并將運送物件放下。
(3)卷揚機作業中注意事項
1.卷筒上的鋼絲繩應排列整齊,如發現重疊和斜繞時,應停機重新排列。嚴禁在轉動中用手、腳去拉踩鋼絲繩。鋼絲繩不許放完,最少應保留三圈。
2.鋼絲繩不許打結、扭繞,在一個節距內斷線超過10%時,應予更換。
3.作業中,任何人不得跨越鋼絲繩,物件提升后,操作人員不得離開卷揚機。休息時物件或吊籠應降至地面。
4.作業中,司機、信號員要同吊起物保持良好的能見度,司機與信號員應密切配合,服從信號統一指揮。
5.作業中,如遇停電,應切斷電源,將提升物降至地面。
(4)作業完后注意事項
1.作業完畢,應斷開電源,鎖好開關箱。
2.提升吊籠或物件應降至地面,清整場地障礙物。
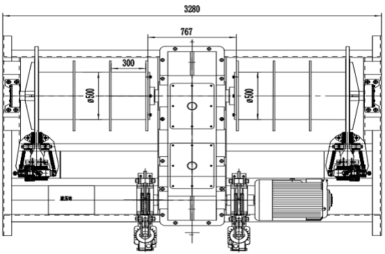
三、結構簡介(見附圖)
(1)本機由機座、減速器、彈性聯軸器、電動機、制動器、安全制動器、卷筒總成及電氣等組成。整機結構緊湊,工藝合理。電動機經聯軸器通過減速器帶動卷筒運轉。同時可通過控制電動機的正反轉達到收放鋼絲繩的目的。卷筒運轉或停止由液壓制動器制動,制動器與電動機同步工作,切斷電源的同時即能制動卷筒,工作迅速靈敏、安全可靠。
(2)卷揚機出繩方式
本卷揚機為前下出繩。其它出繩方位禁止使用
四、卷揚機安裝
安裝前檢查
(1) 檢查卷揚機各零部件是否齊全,運輸過程中有無損傷及丟失。
(2) 仔細清除零部件上的灰塵、油污或鐵銷。必要時應解體清洗。
2、 整體安裝
(1) 卷揚機安裝應根據起吊中線找正,使其中線縱橫向偏差≤5mm,高度偏差±5mm內。
(2) 鋼絲繩型號、長度、穿繞方式及固定螺栓數量均應符合圖紙要求。
鋼絲繩不應有強扭,砸平或扁平等缺陷。鋼絲繩固定牢靠,當放下全部揚程后卷筒上應至少保留不少于3圈的安全圈。
(3) 減速機內應注有足量的潤滑油。
(4) 制動器調整應靈活可靠,制動瓦退距應符合要求。
(5) 電器安裝應接線無誤,所有電器應有保護裝置,負載保護等應靈活可靠。
五、卷揚機試運行
1、卷揚機試轉前應進行下列檢查:
(1)所有電器回路應接線正確、整齊有良好絕緣及接地。
(2)檢查所有機械部件各種保護裝置及潤滑系統,注油應符合要求。
(3)用手轉動制動輪一周應無卡住現像。
(4)鋼絲繩固定牢靠,在卷筒與滑輪中應無交叉現象。
(5)檢查和調節高度限位裝置及制動器。
2、空載試運行
在上述檢查合格后方可空載運行??蛰d運轉要求起升機構全程上下3次
檢查下列電器及機械部分
(1) 電機運轉平穩,三相電流平穩,電器設備可靠無異常與發熱。
(2) 機構運行平穩無沖擊及其它異?,F像。
(3) 所有保護裝置動作準確可靠。
(4) 運轉時制動瓦全部離開制動輪。
(5) 鋼絲繩與其它物件無刮擦。
六、使用及維護
本機出廠前經過空運轉及載重試驗,用戶在正式使用本機以前,除遵照起重機械安全操作的有關規程外,應對本機進行試運轉,檢查各機件和熟悉本機操作情況。
1、安裝卷揚機時要固定地腳螺釘或在機后埋設地錨,以免工作時拖動卷揚機。
2、使用前要認真檢查各部位零件及螺栓有否松動,鋼絲繩緊固程度及各傳動部位潤滑情況等。
3、使用前先進行空載運轉15分鐘,檢查各傳動部位有否沖擊振動現象,開關是否靈敏,制動器是否靈活可靠。
4、 使用中絕對禁止超過額定負荷使用,本機起重量為技術參數范圍以內。
5、 動負荷試驗是超過額定負荷25%,重復升降數次,試驗后檢查其機械傳動,電器部分和連接部分是否正常可靠。
6、 機器開動時不能進行清理或加油,不許在機器前面或重物下面站人,并注意機器的傳動性能,經常保持傳動部位的潤滑良好。
7、 操作人員在工作中,應隨時注意鋼絲繩在卷筒上繞卷的不良情況,并及時清除之,嚴禁用手去誘導鋼絲繩。放下重物時,至少有三圈留在卷筒上
8、 本機須有專人操作,并定期由電工及維修人員進行檢查維護,以免使用不良,而強行工作,造成損壞。在使用過程中如發現故障,應立即切斷主電源。
9、 本機工作時不允許起吊重物長時間懸于空中,工作完后必須把電源的總閘門拉開,切斷主電源。
10、 齒輪減速器油位應經常保持在油位標高線以上,減速器采用55-7號機油作潤滑油,每2-3月換油一次,其他潤滑部位每班加機油2-4次。
工作半年后,檢查減速器及調換潤滑油,檢查制動器及電機并測定其絕緣電阻,確保安全生產。
我公司向社會各界同仁提供各類0.5-75噸各類卷揚機鍋爐檢修平臺專用卷揚機。有快慢速、單筒、雙筒、液壓變頻及摩擦恒速型卷揚機,并提供除塵設備,煙氣凈化,有機廢氣治理(RTO)產品及改造等項目。